Springfield Two Story
3 Bedrooms | 2.5 Bathrooms | Total Sq. Ft. 3,164
1st Floor: 1,582 Sq. Ft. | 2nd Floor: 1,582 Sq. Ft.
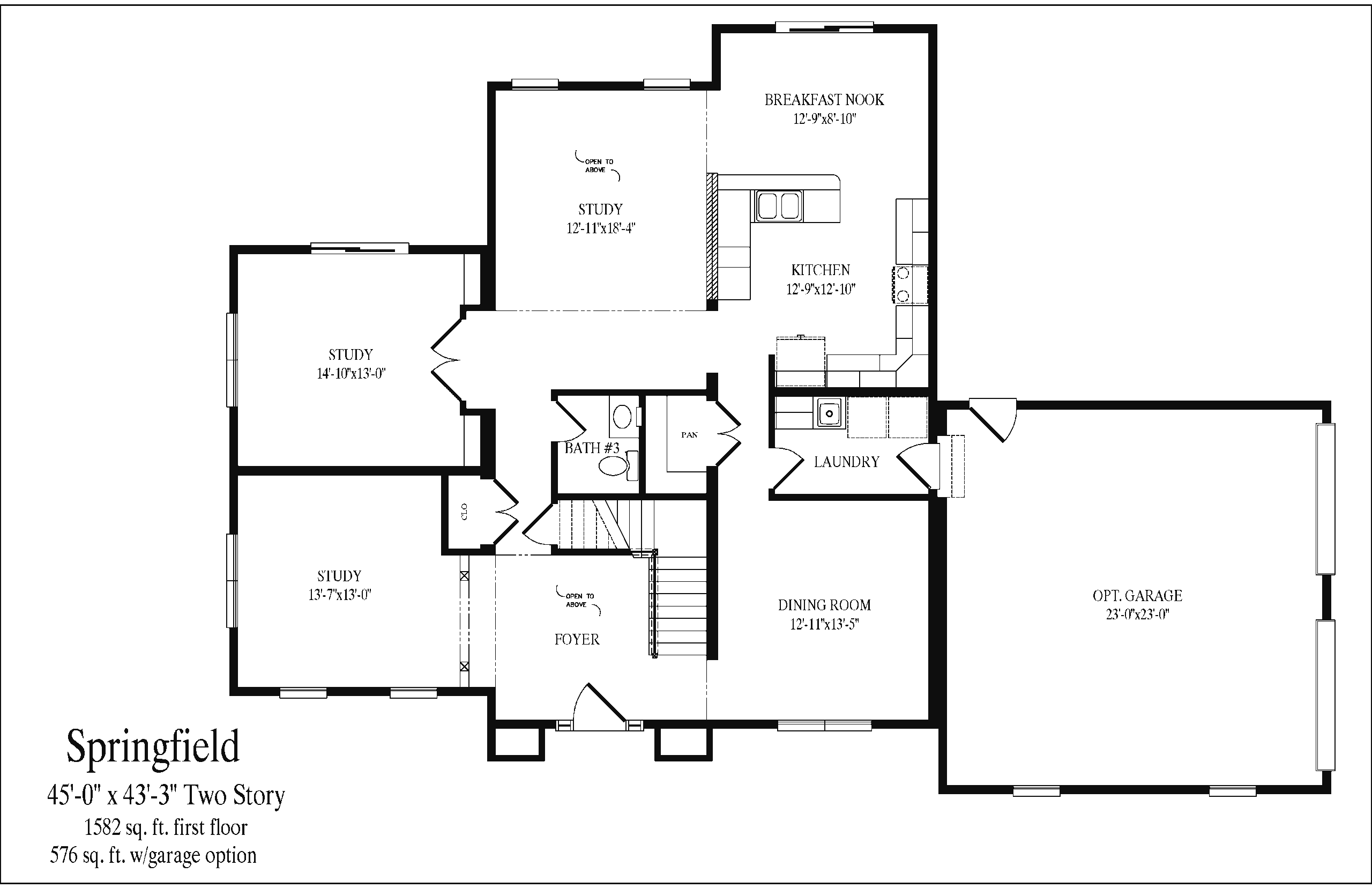
The Springfield Two Story offers 3,164 square feet with 3 bedrooms and 2.5 bathrooms. Additionally, the optional garage expands the first-floor space to 2,158 square feet, thereby providing extra storage and living area.
Upon entering, you step into a foyer with a ceiling open to the second floor. Then, slightly to the right, the staircase leads upstairs. Meanwhile, directly to the right, the dining room is situated, while the living room sits to the left. Next, from the foyer, a short hallway straight ahead contains a half bath on the right and a study on the left. At the end of the hall, the family room opens up to the second floor. Adjacent to the family room, the kitchen connects to the breakfast nook, thus creating a seamless flow for daily living.
From the dining room, a short hallway leads to the kitchen. Along this hallway, the laundry room sits on the right and provides access to the optional garage. In addition, the layout allows easy movement between rooms. Also, the main floor combines functional and social spaces efficiently.
Heading upstairs, a large loft overlooks the open first-floor areas. Straight from the stairs, the master suite features a spacious private bathroom and walk-in closet. Meanwhile, across the loft, two additional bedrooms are located, one with a walk-in closet. Between the bedrooms, a full shared bathroom completes the second-floor layout. Finally, the Springfield Two Story blends open, flowing first-floor spaces with private second-floor bedrooms, while also offering a loft and master suite for versatile family living.


