Westmoreland Two Story
3,279 Sq. Ft. | 4 Bedrooms | 2.5 Bathrooms
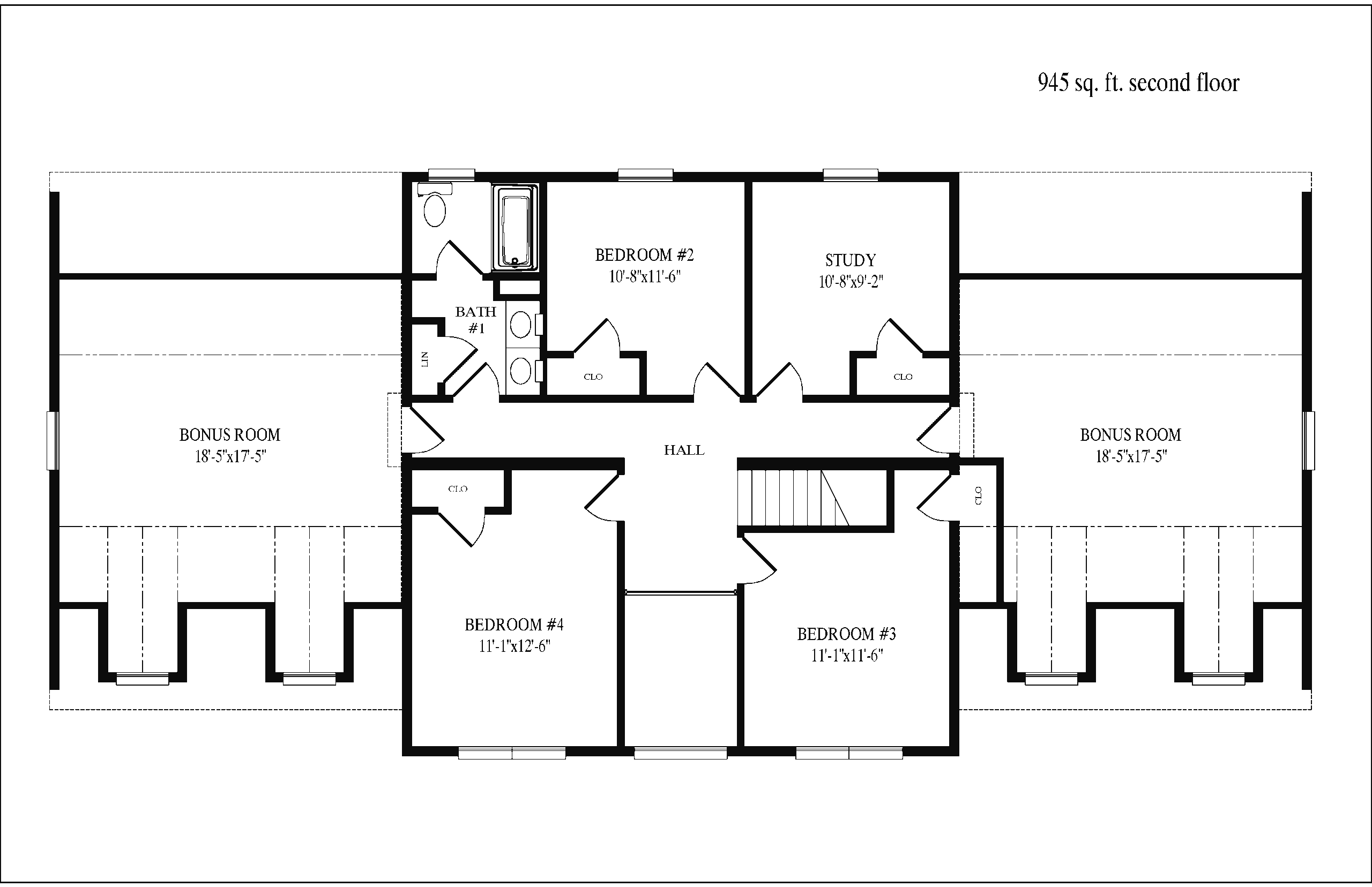
1st Floor: 2,334 Sq. Ft. | 2nd Floor: 945 Sq. Ft.
The Westmoreland offers 3,279 square feet across two stories with 4 bedrooms and 2.5 bathrooms. Additionally, the expansive first floor creates an ideal setting for both entertaining and everyday living.
Upon entering, you step into a welcoming foyer. To the left, the dining room provides a formal gathering space, while a sitting room rests to the right. Straight ahead, the living room anchors the center of the home and naturally draws you inward.
To the right of the living room, the master suite creates a private retreat. Inside, a walk-in closet and full bathroom enhance comfort and convenience. Just nearby, the staircase leads to the second floor.
Meanwhile, on the left side of the living room, a door provides direct access to the garage. Just beyond this point, a half bath and laundry room sit to the right for everyday practicality. Across from these spaces, the kitchen and breakfast nook form a central hub, therefore encouraging connection between cooking, dining, and gathering areas.
Heading upstairs, you arrive at an open landing. From here, a hallway extends to the right, while a bedroom sits directly ahead and another rests beside the staircase. Continuing down the hallway, a full bathroom and bonus room line the left side. On the opposite side, an additional bedroom, a study, and another bonus room provide flexible living options.
Altogether, the Westmoreland Two Story blends expansive first-floor living with versatile second-floor spaces, thus offering comfort, adaptability, and long-term functionality.


