Wyoming III Vacation Cape
3 Bedrooms | 2 Bathrooms | Total Sq. Ft.: 2,183
First Floor: 1,985 Sq. Ft. | Second Floor: 198 Sq. Ft.
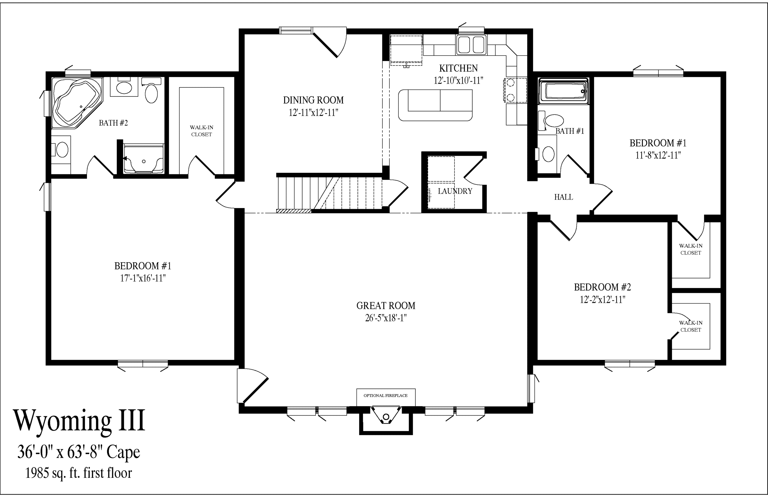
The Wyoming III Vacation Cape offers 2,183 square feet with 3 bedrooms and 2 bathrooms. Overall, the first floor provides 1,985 square feet, while the second floor adds 198 square feet of bonus space. Specifically, the design balances open gathering areas with private retreats.
As you enter, you step into the great room. Here, vaulted ceilings enhance the sense of openness. In addition, an optional fireplace creates a cozy focal point. Meanwhile, the staircase to the second floor sits to the left. Just beyond the stairs, the dining room connects seamlessly to the main living space.
Adjacent to the dining area, the master suite provides a private retreat. Inside, a large walk-in closet offers storage, and the bathroom features a corner tub plus a separate shower. Furthermore, this setup ensures both comfort and convenience.
Returning to the dining room, the kitchen sits straight ahead. Within this space, the laundry area is conveniently located. Immediately after the laundry, a hallway leads to the secondary bedrooms. Along the hall, a shared bathroom sits on the left, while one bedroom is positioned on the right. At the end of the hallway, the third bedroom completes the layout. Notably, each secondary bedroom includes its own walk-in closet.
Heading upstairs, the proposed second floor offers an unfinished bonus area. Here, you can create a playroom, home office, or storage space. As a result, the home gains extra flexibility. Altogether, the Wyoming III Vacation Cape blends vaulted living areas with a functional upper level. Therefore, it delivers comfort, style, and long-term versatility.


