Booth Bay Vacation Cape
3 Bedrooms | 2 Bathrooms | Total Sq. Ft.: 1,846 Sq. Ft.
First Floor: 1,320 Sq. Ft. | Second Floor: 526 Sq. Ft.
The Booth Bay Vacation Cape offers 1,846 total square feet. Specifically, the first floor includes 3 bedrooms and 2 bathrooms, while the proposed second floor adds 526 square feet of flexible space.
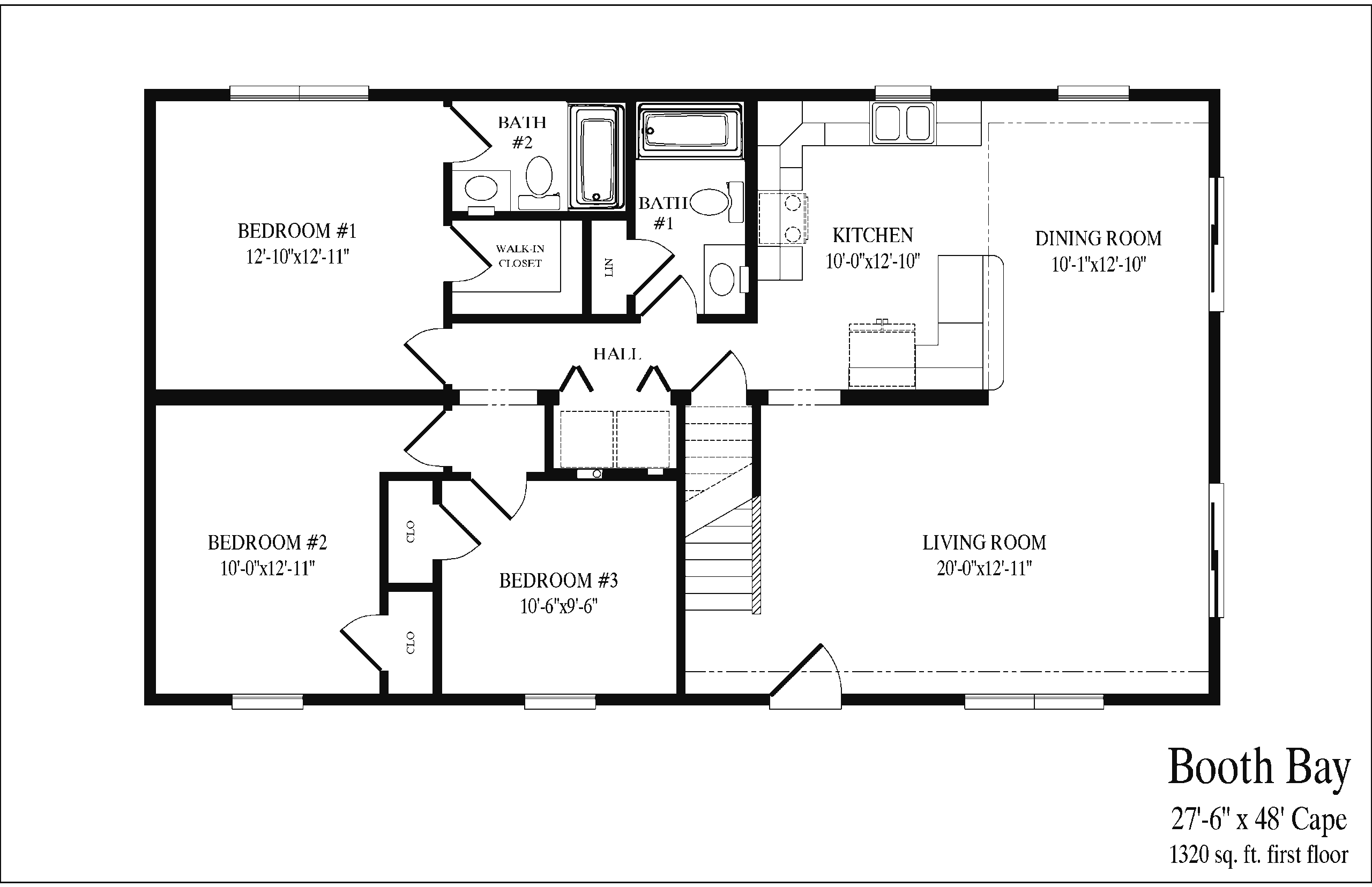
Upon entering, you step into the living room, where the staircase rises to the left. Straight ahead and slightly to the right, the dining room serves as a central gathering area. To the left of the dining room, the kitchen provides convenient workspace and includes a doorway back into the living room, thereby creating an easy circular flow.
Just before reaching that doorway, a hallway leads to the private bedroom wing. Along this hallway, a full bathroom is positioned on the right, while the laundry area sits on the left. Continuing farther down, two bedrooms line the left side. Finally, at the end of the hall, the master bedroom offers a walk-in closet and a full private bathroom.
Heading upstairs, the proposed second floor expands the living space. Here, a loft overlooks both the living room and dining room, thus maintaining an open and connected feel. In addition, a bonus room provides flexible space for guests, recreation, or storage.
Overall, the Booth Bay Vacation Cape blends open main-level living with an adaptable upper floor, therefore offering comfort, functionality, and long-term versatility.


