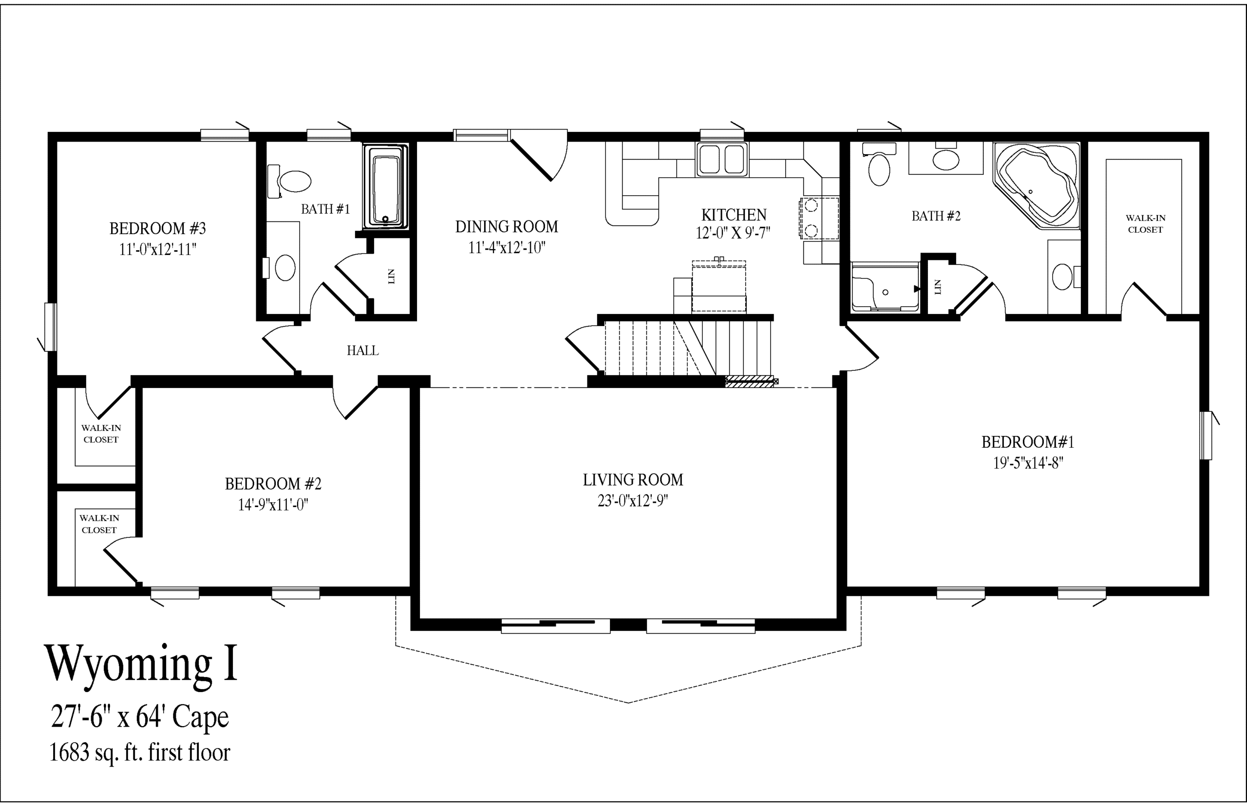
Wyoming I
- Vacation
- 3
- 2
- 1869
- View the pdf
Click the images below to view larger
View More Floorplans

Multi Family
Canadaiqua
The end unit of a 6 unit multi-family modular home. This one story unit has 2 bedrooms, 2 bathrooms, full laundry room off the attached

