Timber Ridge Ranch
3 Bedroom | 2 Bathroom | 1,503 Sq. Ft.
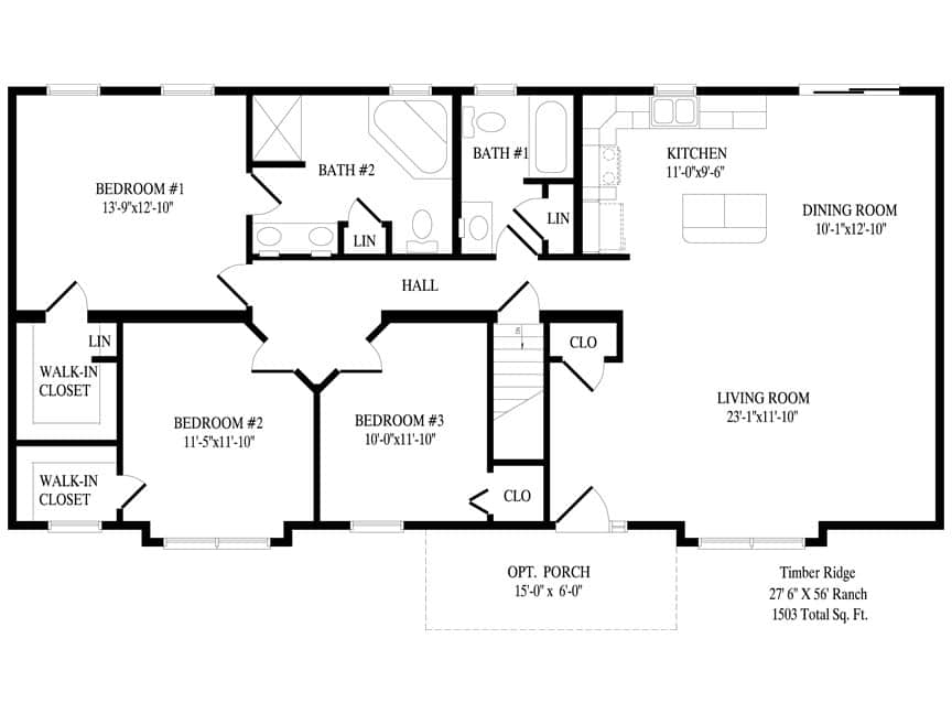
The Timber Ridge Ranch offers 1,503 square feet with 3 bedrooms and 2 bathrooms. This layout features an open main living area with a private bedroom wing and a separated master suite.
Upon entering from the optional porch, you step directly into the living room. From this space, the open layout allows clear views into both the kitchen and dining room.
Next, between the end of the living room and the start of the kitchen on the left, a long hallway leads to the bedroom wing. Along this hall, a shared full bathroom is located on the right, while two secondary bedrooms are positioned on the left.
At the end of the hallway, the master suite provides a private retreat. Inside, the suite includes a large walk-in closet and a full private bathroom.
Overall, this design combines open-concept living with a well-separated bedroom layout and a private master suite for everyday comfort.


