Allenwood Ranch
1,650 Sq. Ft. | 576 Sq. Ft. Optional Garage | 3 Bedrooms | 2 Bathrooms
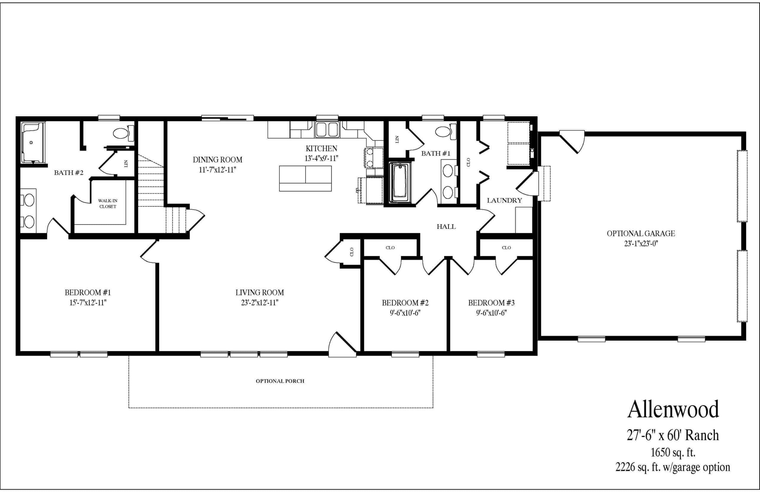
The Allenwood Ranch offers 1,650 square feet with 3 bedrooms and 2 bathrooms. This layout features an open main living area, a private master suite, and a functional bedroom wing.
Upon entering from the optional porch, you step into the large, open living room. To the left, the master suite includes a walk-in closet and a private full bathroom. Back in the living room, a hallway is located to the right, while the dining room sits straight ahead. The kitchen is positioned to the right of the dining area, creating a connected flow between spaces.
Down the hallway, two secondary bedrooms are located on the right. On the left, a shared full bathroom is easily accessible. At the end of the hall, the laundry area is positioned for convenience, along with a door leading to the optional garage.
Overall, this design combines open living spaces with a private master suite and a well-organized bedroom wing for everyday functionality.
See the Virtual Tour Below!
*Optional upgrades shown


