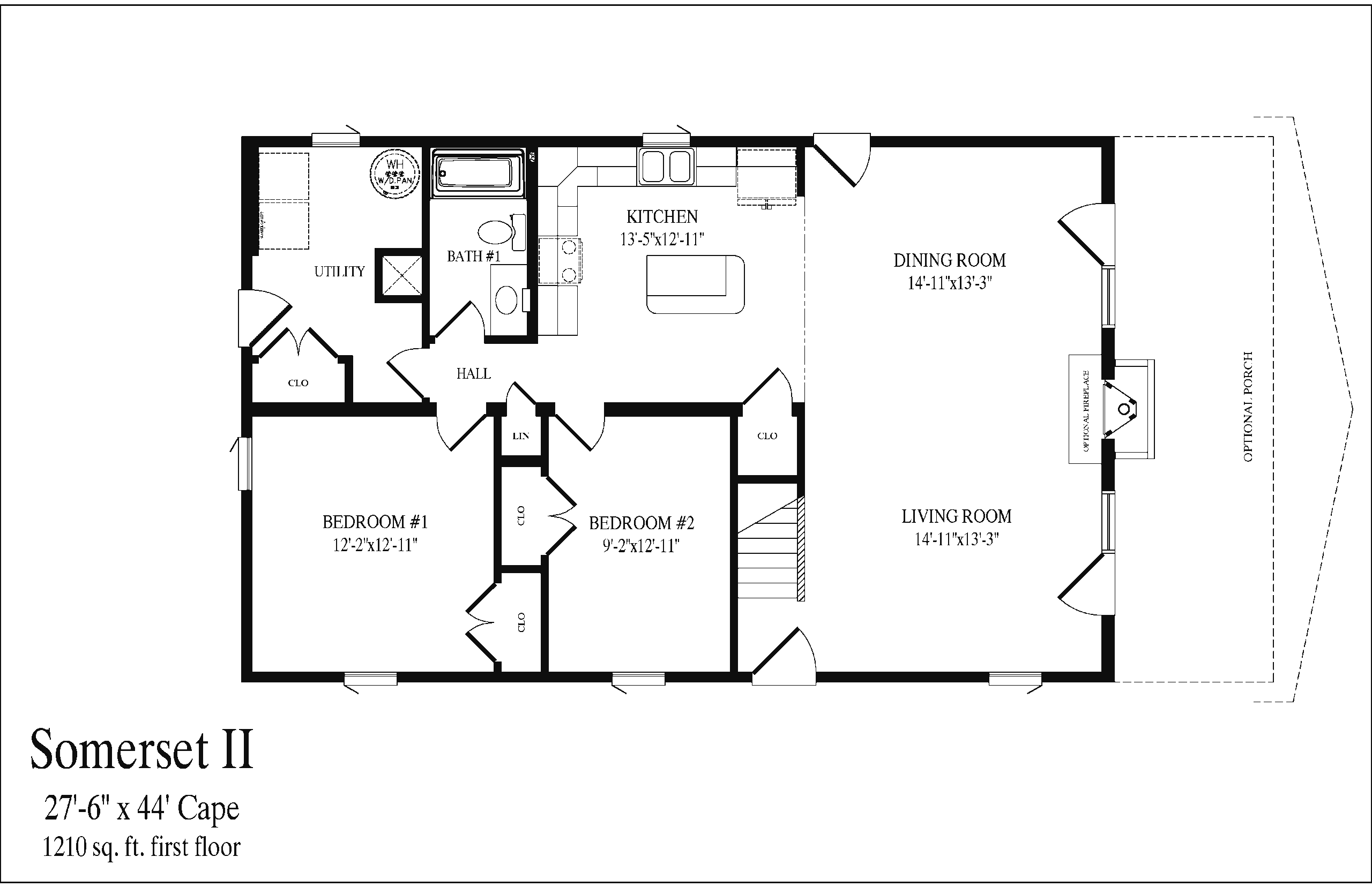
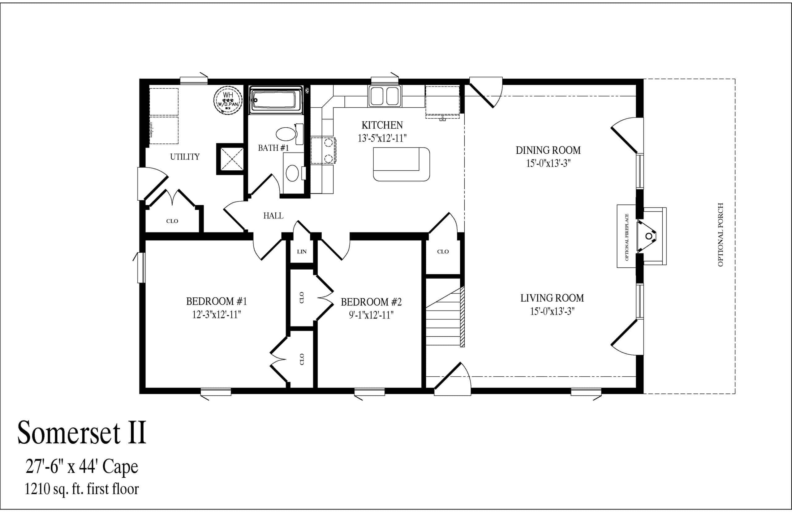
Somerset II Vacation Cape
1,650 Sq. Ft. | 2 Bedrooms | 1 Bathroom
1st Floor: 1,210 Sq. Ft. | 2nd Floor: 440 Sq. Ft. | Optional Front Porch
The Somerset II Vacation Cape offers 1,650 square feet with 2 bedrooms and 1 bathroom on the main level. An optional front porch enhances the exterior, while the main entry is located on the side of the home.
Enter into the living room, where the staircase rises to the left. Straight ahead, the dining room connects seamlessly to the space. To the left, the kitchen completes the open living area, creating a bright and functional layout.
Continuing past the kitchen, a hallway leads to the private bedroom wing. Along this hall, two bedrooms sit on the left, while a full bathroom is positioned on the right. At the end of the hallway, a utility room with laundry and a back door adds everyday convenience.
Upstairs, the proposed second floor features a bonus area with a loft and an additional bathroom. This flexible space works well for guests, recreation, or future expansion.
With its open first floor and added upper-level flexibility, the Somerset II Vacation Cape balances comfort and versatility.


