Northampton III Cape
1,100 Sq. Ft. | 1,712 Sq. Ft. with Garage Option | 2 Bedrooms | 1 Bathroom
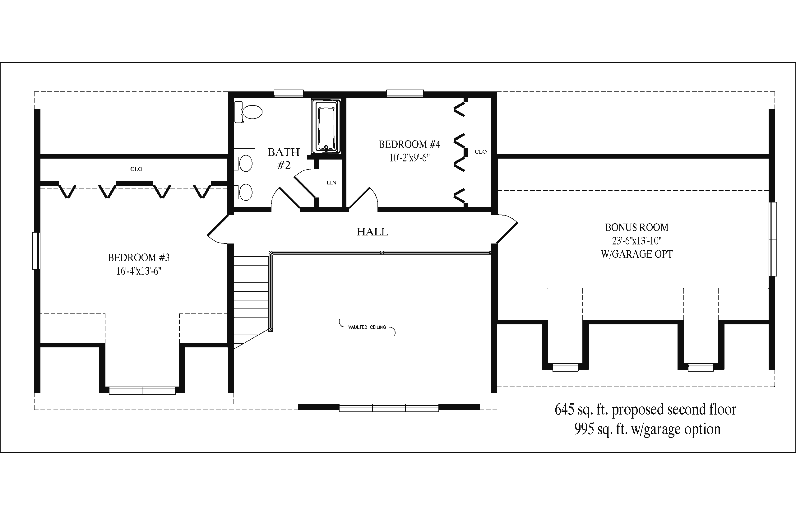
Proposed Second Floor: 645 Sq. Ft. | 995 Sq. Ft. with Garage Option | 2 Bedrooms | 1 Bathroom
The Northampton III Cape delivers 1,100 square feet of thoughtfully designed first-floor living, with options to expand upward and add a garage.
As you enter from the optional porch, you step directly into the living room, while the staircase sits slightly to the left. Just beyond this space, the dining room and kitchen connect to create an open and functional layout. In addition, the kitchen provides direct access to the optional garage for everyday convenience.
Off the dining area, a hallway leads to the private bedroom wing. Along this corridor, a full bathroom is positioned on the right, while a secondary bedroom sits on the left. At the end of the hall, another bedroom offers added privacy and flexibility.
Upstairs, the proposed second floor adds valuable living space. At the top of the stairs, a long hallway extends to the right. To the left, a third bedroom provides comfortable accommodations. Farther down the hall, you’ll find a full bathroom and an additional bedroom. Meanwhile, an open view to the vaulted ceiling below enhances the sense of space. If you choose the garage option, a bonus room sits at the end of the hallway, offering even more versatility.
Overall, this design balances efficient first-floor living with flexible expansion options to suit a variety of needs.


