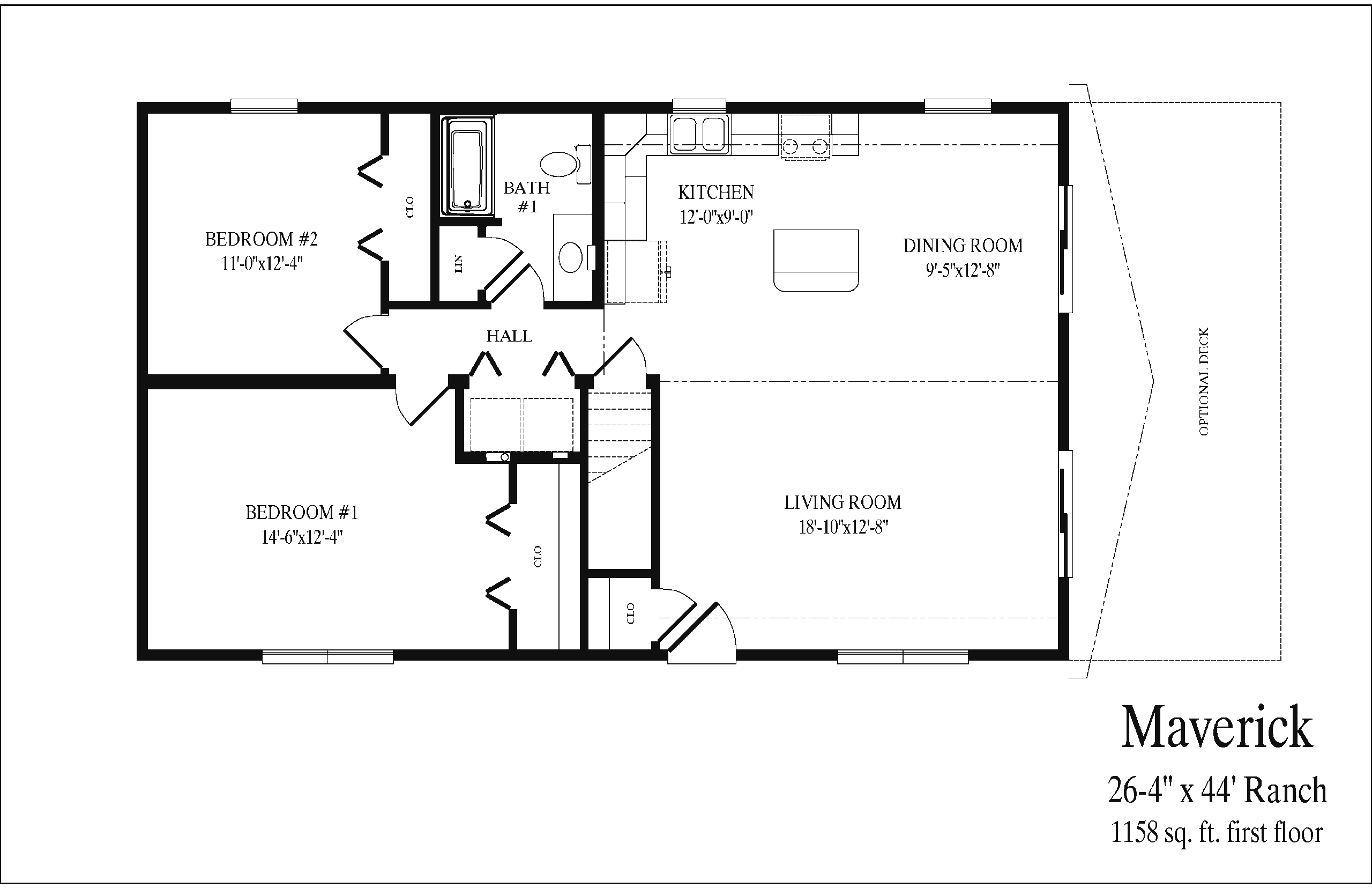
Maverick Vacation Ranch
1,158 Sq. Ft. | 2 Bedrooms | 1 Bathroom | Optional Front Deck
The Maverick Vacation Ranch offers 1,158 square feet with 2 bedrooms and 1 bathroom. An optional front deck enhances outdoor living and curb appeal.
Enter into the living room, where you face the open dining room and kitchen. This central area features a vaulted ceiling, creating a bright and spacious feel.
To the left, a hallway connects the private living spaces. Along the hall, a full bathroom is located on the right, while the laundry area sits on the left. A bedroom is also positioned along this hallway, with the second bedroom located at the end.
With its open layout and efficient bedroom wing, the Maverick Vacation Ranch blends comfort and functionality in a compact design.


