The Bluefish offers comfortable first-floor living with the flexibility to expand.
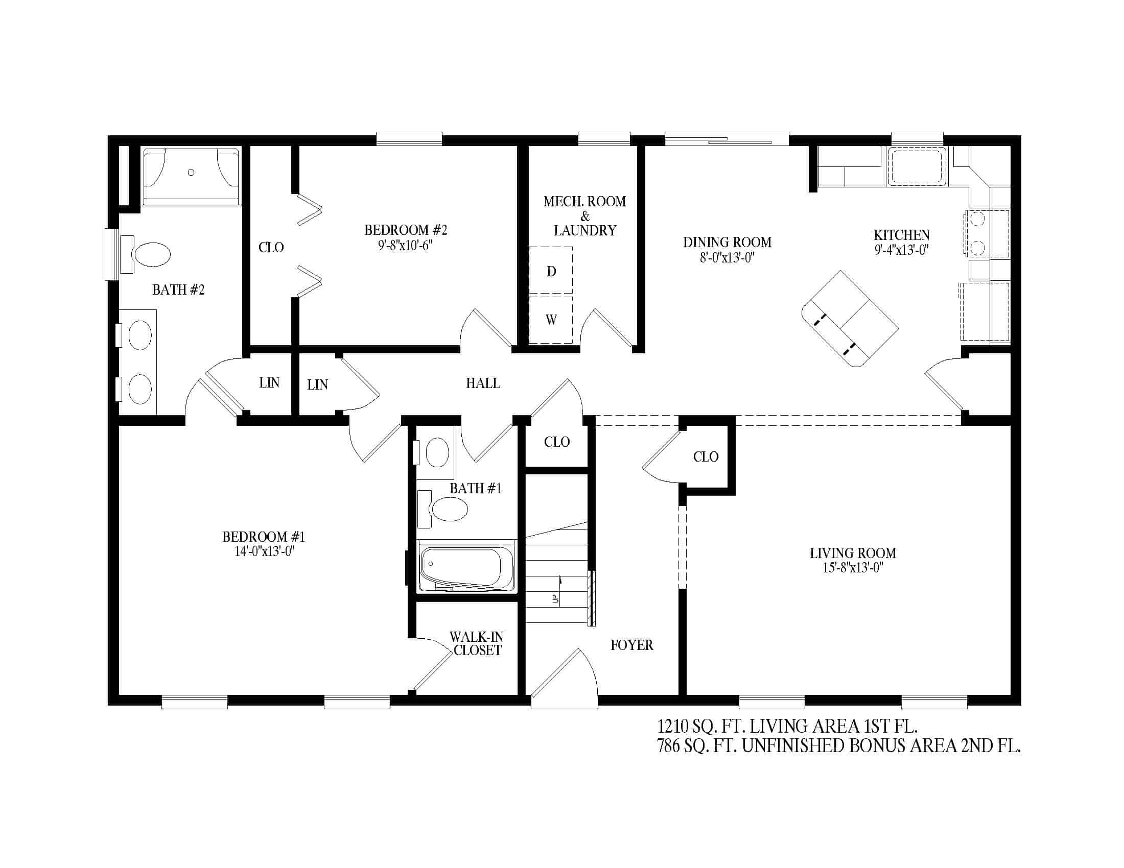
The 1,210-square-foot first floor includes two bedrooms and two full bathrooms, creating a functional layout that supports both privacy and convenience. The design provides inviting living space for everyday comfort and easy entertaining.
Add a proposed 786-square-foot unfinished second floor to customize your home over time. This space gives you the freedom to create additional bedrooms, a bathroom, or a bonus area tailored to your needs.
The Bluefish delivers smart design today with endless possibilities for tomorrow.


