Hemlock Hill IV Bonus Ranch
1,451 Sq. Ft. First Floor | 1,808 Sq. Ft. with Garage Option
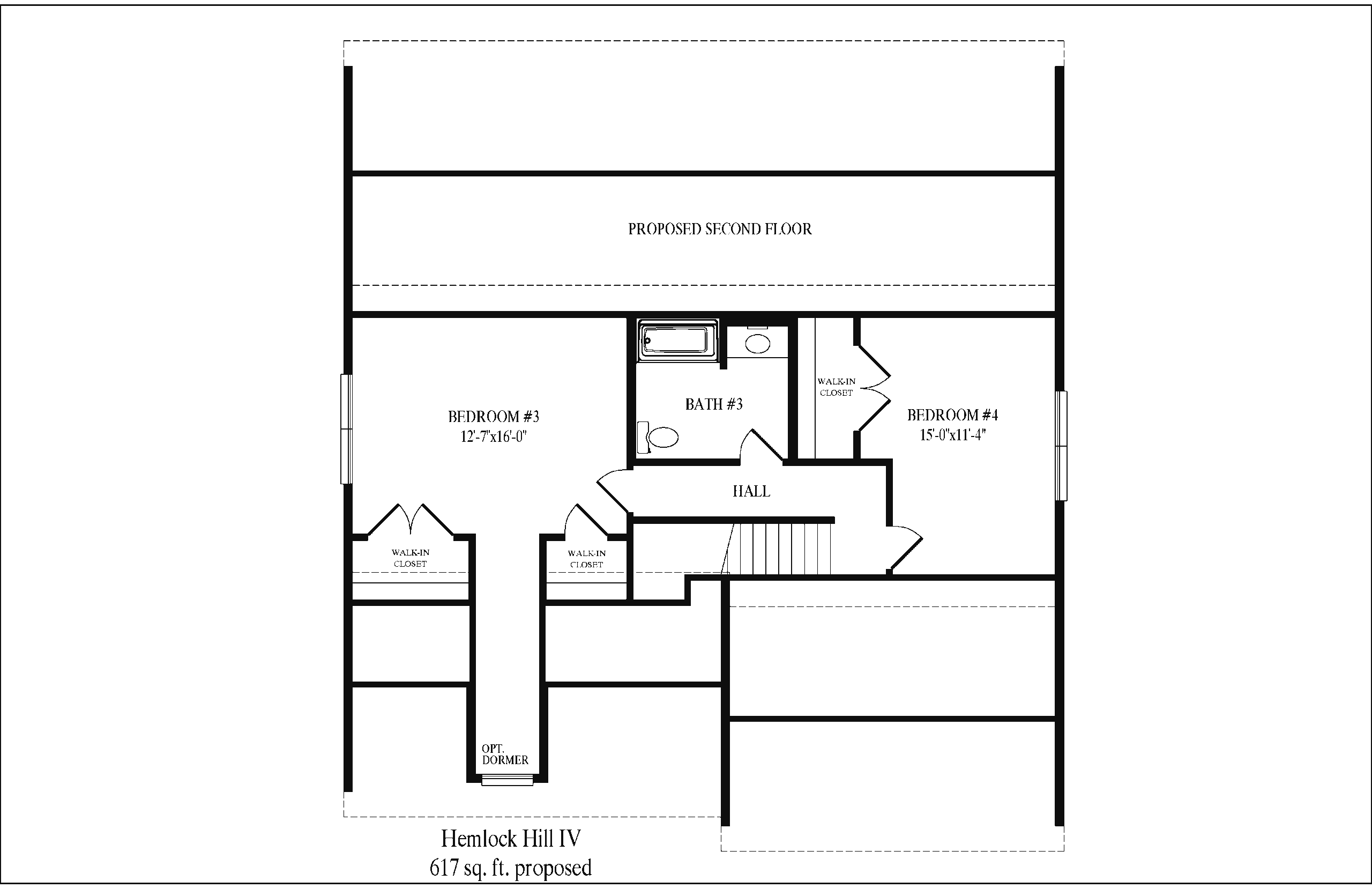
Proposed Second Floor: 617 Sq. Ft.
The Hemlock Hill IV Bonus Ranch offers spacious first-floor living with the added flexibility of a proposed second level.
As you enter into the foyer, the staircase rises to the right, alongside convenient access to the optional garage. Straight ahead, a main hallway guides you through the heart of the home. To the left, a smaller hallway leads to a well-organized bedroom area. At the end of this hall, the laundry area sits straight ahead, while a full bathroom is positioned to the right and a bedroom to the left.
Returning to the main hallway, the kitchen is located to the right, creating a functional workspace near the center of the home. Moving forward, the layout opens into the living room on the left and the dining room on the right, forming a comfortable and inviting gathering space. Just beyond the dining room, the master suite offers a private retreat complete with a walk-in closet and full bathroom.
Upstairs, the proposed 617-square-foot second floor expands the home’s versatility. A bedroom sits on both the left and right sides of the staircase, while a bathroom is centrally positioned between them for convenience.
Altogether, the Hemlock Hill IV Bonus Ranch combines practical main-level living with optional bonus space to grow with your needs.


