Chatham Cape
2 Bedrooms | 2 Bathrooms | Total Sq. Ft.: 1,980
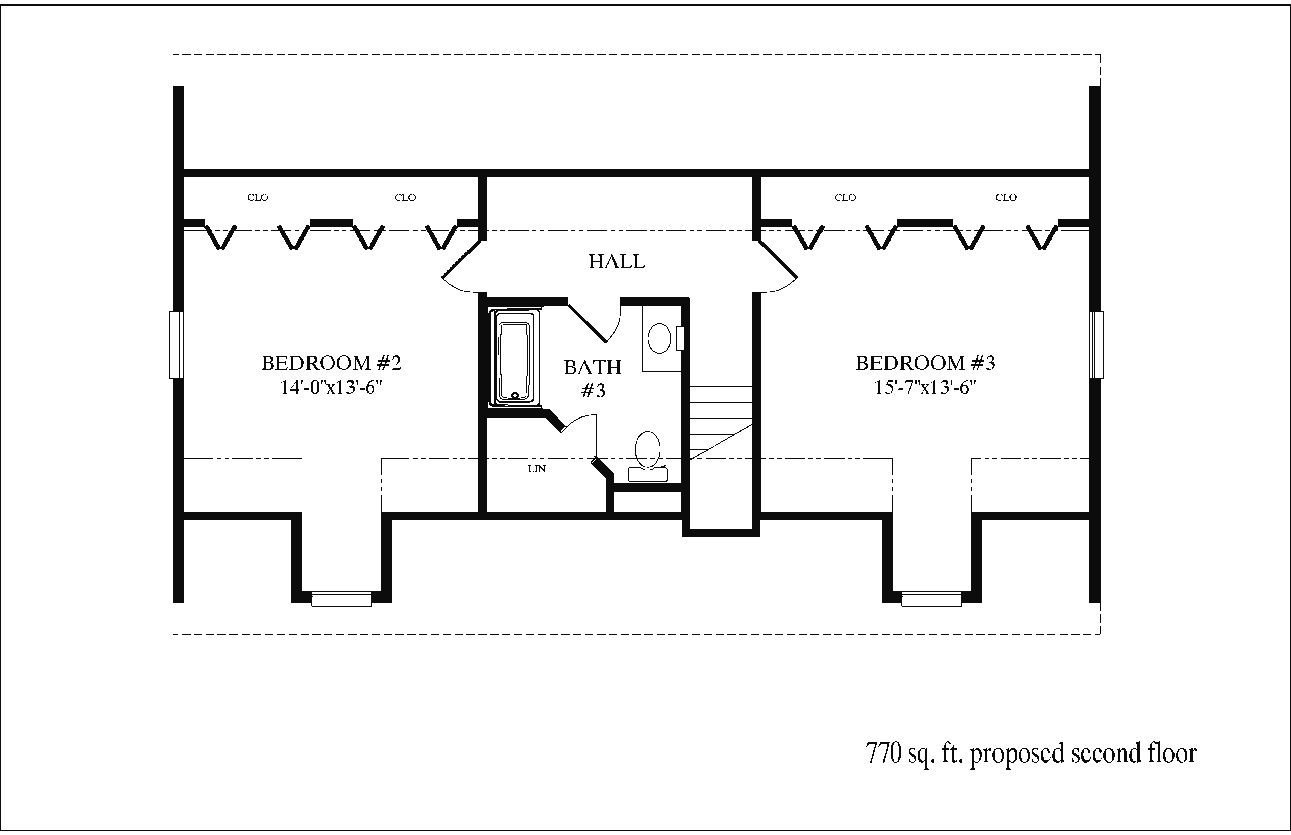
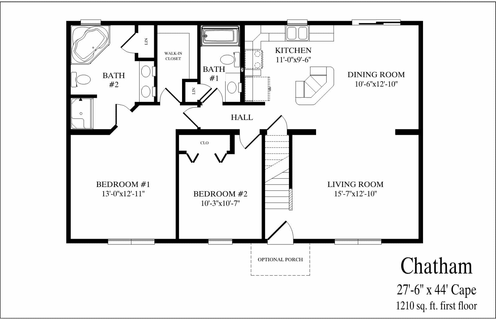
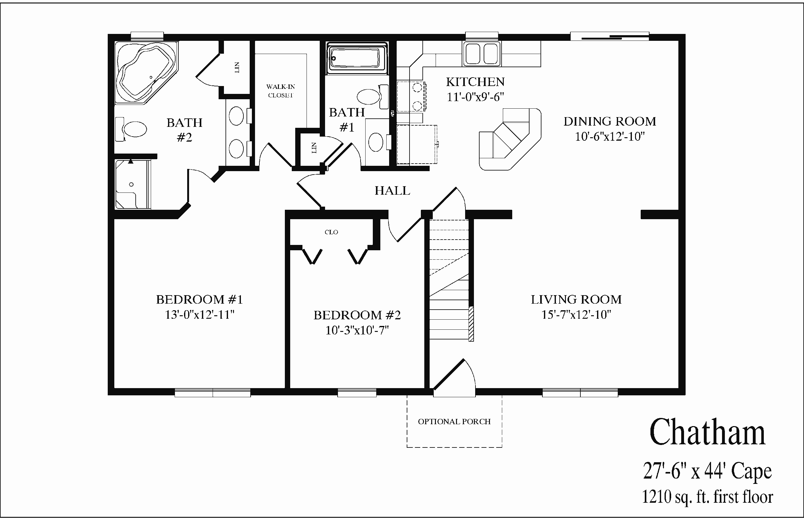
First Floor: 1,210 Sq. Ft. | Proposed Second Floor: 770 Sq. Ft.
The Chatham Cape offers 1,210 square feet of comfortable first-floor living, along with a thoughtfully designed second-floor expansion option.
As you enter the home, the staircase stands directly ahead, while the living room welcomes you to the right. Past the living room, the dining area sits to the left and flows seamlessly into the kitchen just beyond it, creating an open and connected main living space.
Past the kitchen, a hallway leads to the private bedroom wing. Along this corridor, a secondary bedroom is positioned on the left, while a full bathroom sits on the right for convenient access. At the end of the hall, the master suite provides a quiet retreat complete with a walk-in closet and private bathroom.
Upstairs, the proposed 770-square-foot second floor adds valuable flexibility. At the top of the stairs, a hallway extends to the left, where you’ll find a full bathroom and a bedroom farther down. To the right, an additional bedroom sits just off the landing.
Altogether, the Chatham Cape blends efficient first-floor design with adaptable second-floor space for future growth.


